CRIKVENICA - Luxuriöse Wohnungen im Stadtzentrum


Grundlegende Informationen

  • Objekt-Kennnummer2430
  • Verkaufspreis179 400 € (1 351 689 kn)
  • Standort Crikvenica (51260)
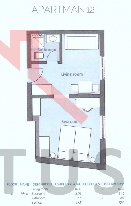
  • Fläche28,00 m2
  • Wohnungstyp1-Z+WZ
  • EnergieeffizienzklasseA+
  • Anzahl der Zimmer2
  • Anzahl der Schlafzimmer1
  • Anzahl der Badezimmer1
  • Geschoss1
  • Anzahl der StockwerkeEinstöckig
  • GebäudeartWohngebäude
  • Baujahr2025
  • Entfernung vom Meer600 m

Wohnung 1-Z+WZ zu verkaufen, Crikvenica, 179 400 €

Luxuriös ausgestattete Wohnungen im Herzen der Stadt Crikvenica, gelegen in einem Neubau, nur 600 Meter vom Meer entfernt.

Sie sind mit einem intelligenten Steuerungssystem über eine mobile App ausgestattet – Steuerung der Heiz-/Kühlanlage, Steuerung des Boilers für Warmwasser sowie der Heizkörper im Badezimmer, ebenso wie die Steuerung der Beleuchtung innerhalb der Wohnung. Das Gebäude ist videoüberwacht, und in den Wohnungen sind Sensoren zur Erkennung geöffneter Fenster und Türen installiert. Das Gebäude verfügt über einen Aufzug, im Erdgeschoss befinden sich ein Restaurant und ein Wellnessbereich mit Innenpool. Möglichkeit zum Kauf eines Parkplatzes gegen Aufpreis.

Mehrere verfügbare Wohnungen zum Verkauf innerhalb des Objekts, mit verschiedenen Größen von 19 m2 bis 30 m2. Der Investor ist im Mehrwertsteuersystem registriert, daher ist der zukünftige Käufer von der Zahlung der Immobilienertragsteuer befreit.

Kontaktieren Sie uns gerne für weitere Informationen.



Sehr geehrte Käufer, gemäß dem Gesetz über die Immobilienvermittlung ist eine Besichtigung von Immobilien nur mit Unterzeichnung des Maklervertrages möglich. Dementsprechend ist der Käufer bei einem Kauf zur Zahlung einer Vermittlungsprovision verpflichtet.

Sonstige Eigenschaften

  • Aufzug

Heizung

  • Strom

Installationen

  • Strom
  • Wasser
  • Kanalisation

In der Nähe

  • Restaurant
  • Supermarkt
  • Friseursalon
  • Park
  • Mietwagenverleih
  • Schule
  • Tierarzt

Dokumentation

  • Eigentümerliste
  • Gebäudeaufteilungsplan
  • Beschluss über den ausgeführten Stand

Standort der Immobilie

Kontaktieren Sie diesen Agenten

Erik Matković

Erik Matković